Publikuota: 2021 m. 21 spalio d. 09:00
Didelės šeimos namai („Metų interjeras / Auksinė paletė’19“)
namai

Vaidoto Darulio nuotr.

„Dizona“ kviečia prisiminti geriausius konkurso „Metų interjeras“ projektus. Šį kartą projektas laimėjęs„Metų interjeras / Auksinė paletė‘19“ kategorijoje „Už lietuviško dizaino propagavimą“. Projekto autoriai: Ignas Kalinauskas, Aidas Kalinauskas ir Laurynas Bublys.

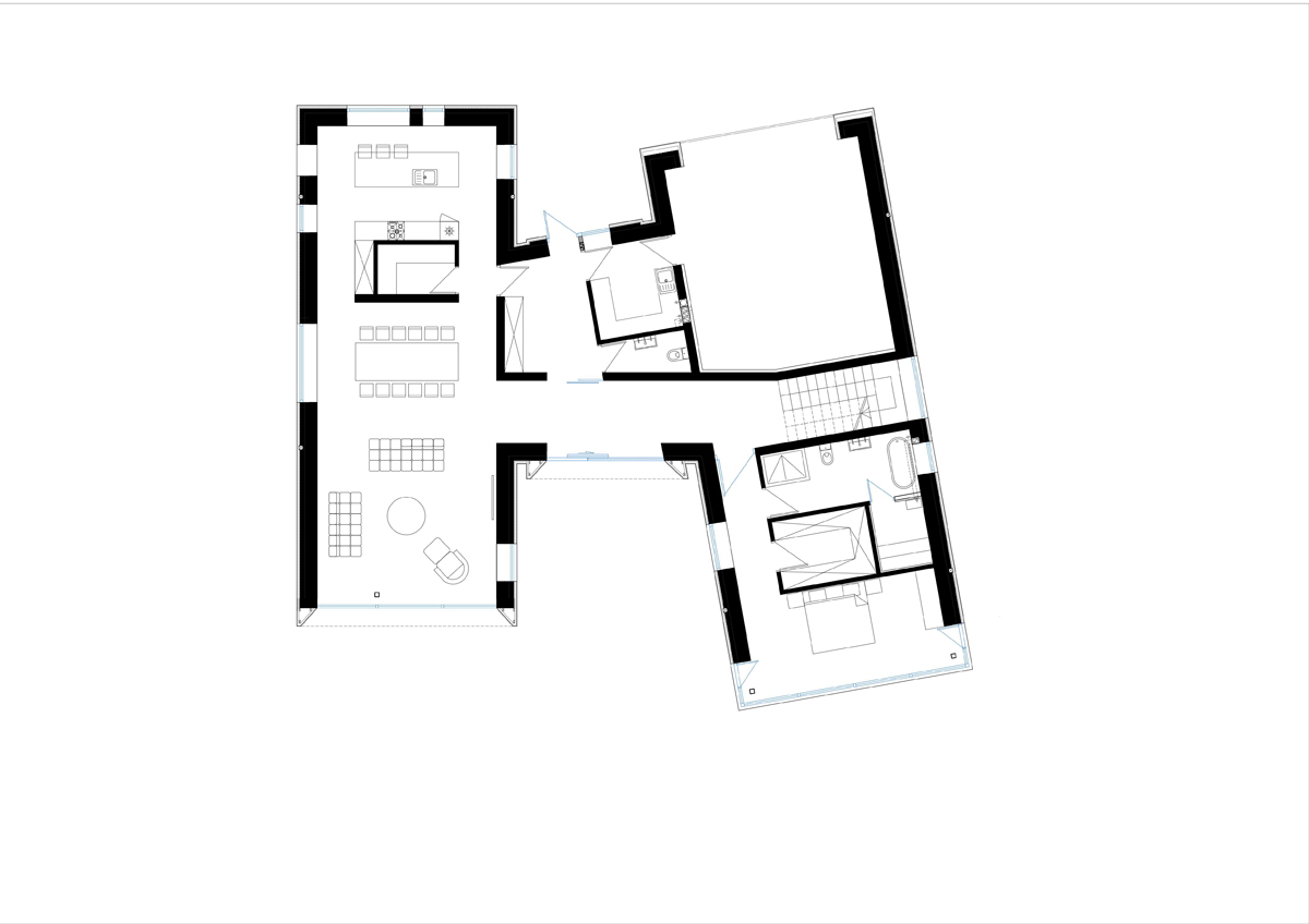
Didelės šeimos namai 

Šis namas mums yra ypatingas. Jame itin ryškiai atsiskleidė visi mūsų esminiai dizaino principai – absoliutus funkcionalumas, kontekstualumas, sprendinių nuoseklumas ir individualus charakteris. Šie namai skirti didelei gražiai šeimai su savo unikalia istorija. Jis stovi individualių gyvenamųjų namų kvartale, tačiau vienoje pusėje ribojasi su mišku, iš kurio retkarčiais atbėga stirnos. Mes pasirūpinome, kad jos būtų visuomet pastebėtos pro plačias vitrinas.

Interjero dizainas ir erdvės buvo užkoduotos dar pirminiuose architektūrinės koncepcijos eskizuose. Pradėję projektuoti namą jame išskyrėme tris skirtingo aukščio tūrius ir erdves, atitinkančias jų funkciją. Didžiausia erdvė numatyta svetainės, valgomojo ir virtuvės zonose. Mažiausia – įėjimo zona su katiline ir sanmazgu, o dviejų aukštų tūris skirtas miegamiesiems.

Jo interjeras – be galo šviesus, o erdvinė kompozicija susideda iš serijos medinių užprogramuotų rėmų baltose plokštumose – langų, durų, galerijos, televizoriaus, darbo zonos, laikrodžio, laiptinės, virtuvės darbo stalo ir kitų. Interjero dizaino kryptis buvo užkoduota jau architektūrinės koncepcijos pradžioje ir mums beliko tik išlaikyti nuoseklumą. Be visa ko, šie namai skirti mėgautis gyvenimu.

Visą konkurso Metų interjeras / Auksinė paletė dalyvių kurtų interjerų galeriją galite peržiūrėti čia.

Informuojame, kad šioje svetainėje naudojami slapukai („cookies“), kurie padeda užtikrinti jums teikiamų paslaugų kokybę. Paspausdami SUTINKU arba tęsdami naršymą, jūs sutinkate su portalo slapukų politika. Atjungti slapukus galite savo naršyklės nustatymuose.