
Vytenio Raubicko nuotr.
“Alisa Stebuklų Šalyje” interjero projektas, prasidėjęs per pandemiją buvo lyg pareiškimas mūsų kasdienybei, kuri dėl neramių laikų nusidažė monotiniškomis spalvomis! Techniniai ir vizualiniai šio interjero sprendimai Jus nukels į visiškai kitą realybę, kurioje ryškios spalvos, raštai, tekstūros ir rankų darbo interjero elementai ir iš knygos prisikėlę veikėjai, neleis nuobuodžiauti!
Norint išlaikyti patalpų harmoniją ir nesukelti chaoso, tarp medžiagų ir spalvų gausos, pasirinkome keletą pagrindinių akcentų: didžiausiems namų plotams, kaip grindims ir luboms, naudojome betoną, kuris suteikė patalpoms vientisumą ir leido atsiskleisti kitiems ryskesniems interjero sprendimams, kaip žaliems laiptams, užuolaidoms ir turėklams. Kitu pagrindiniu elementu tapo juodi tonai, kurie gudriai įsipaišė į mažesnius plotus užimančius interjero elementus, kaip: virštinkinė elektros instaliacija, rankų darbo šviestuvai, kurie persipina su visą sieną užpildančia knygų lentyna, metalinius lubų tinklelius, kietuosius baldus, stiklinių pertvarų profilius ir pan.
Žvenlgiant pro šio projekto langus neišvysime miškų ar gamtos žalumos, todėl į miesto centre įsikūrusį loftą, apsuptą judrių gatvių ir kitų pastatų norėjome įnešti dalelę gamtos, taip sienas papuošė bonatikos tematikos tapetai, molio sienos, natūralaus medžio masyvo lentynos bei baldai.
Draugiški aplinkai interjerai, tai yra mūsų ateitis ir naudoti, kuo įmanoma „žalesnes“ medžiagas, jaučiame pareigą, todėl be anksčiau išvardintų naudotų natūralių medžiagų, antram gyvenimui prikėlėme nemažą dalį minkštųjų ir kietųjų baldų, dekoro elementų.
“Alisa Stebuklų Šalyje” interjero projektas, tai pavyzdys, jog už uždarų durų, spalvų ir raštų harmonijoje, galite išlaisvinti save ir gyventi taip, kaip norite.
Šalis: Lietuva
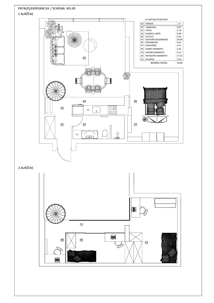
Plotas: 95m2
Daugiau interjero nuotraukų rasite čia:
„Metų interjeras / Auksinė paletė’“ – solidžiausias profesionalių interjero kūrėjų konkursas, kuriuo siekiama kelti interjero kultūrą Lietuvoje. Iki šiol konkurse jau dalyvavo per 250 architektų ir dizainerių. Vertinti buvo pateikta daugiau nei 1 500 darbų. Įteikta daugiau nei šimtas viena „Auksinė paletė“ – interjero dizaino „Oskaras“.
Visą konkurso „Metų interjeras / Auksinė paletė“ dalyvių kurtų interjerų galeriją galite peržiūrėti čia.