
Projektas apdovanotas konkurse „Metų interjeras“. Projekto autorius: Andrius Byčenkovas | Leono Garbačausko nuotr.
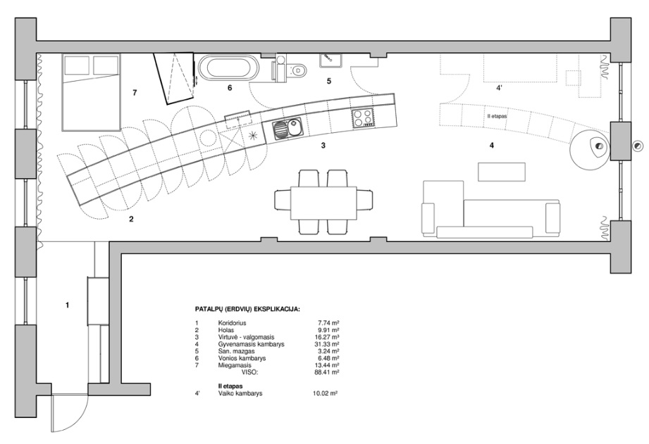
Užduotis buvo tokia: tarp keturių sienų turėtų apsigyventi jauna dviejų asmenų šeima, o šeimai pagausėjus turėtų būti numatyta galimybė įrengti kambarį vaikui.


Projektas apdovanotas konkurse „Metų interjeras“. Projekto autorius: Andrius Byčenkovas | Leono Garbačausko nuotr.
Teko ieškoti struktūros, kuri organiškai įsilietų į duotą erdvę, bei ateityje organiškai išaugtų kambarys atžalai. Kuriant, erdvėje vietą surado kompozicinis elementas, formuojantis visas reikiamas funkcines zonas bei erdves. Tai – plastiškas dinamiškas elementas griežtoje statiškoje erdvėje. Šis kompozicinis elementas tapo lofto stuburu, aplink kurį galima laisvai judėti erdvėse tiek fiziškai, tiek vizualiai… Taigi stuburui teko suteikti visas funkcijas, kurios užtikrina patogų ir komfortišką gyvenimą namuose. Jis sudarytas iš atskirų segmentų, kurie sugrupuoti pagal funkcijas: drabužinės, buitinė spinta, lentynos, virtuvės zona, skalbykla, vonios kriauklė ir t. t. Šis kompozicinis darinys visapusiškai funkcionuoja erdvėje.
Apsprendžiant erdvės medžiagiškumą, buvo atsižvelgta į stiprų charakterį turinčią betoninę konstrukciją. Ji pasirodė labai patraukli, tik kiek laukinė, todėl kaip atsvara buvo pasirinkta stipri ir išraiškinga grindų danga. Sodrus medžio grindų paviršius su dinamiška faktūra harmoningai kalbasi su betonu. Kiti paviršiai pasirinkti neutralios spalvos. Vienintelės pertvaros skiriančios tualeto patalpą nuo erdvių – stiklinės, skaidrios, žemutinėje zonoje – matinės.
Permatomoje erdvėje dinamiškumo suteikia ore sklendžiantys šviestuvai, jų plastiška forma ir medžiagiškumas atspindi į erdvę atėjusių medžiagų charakterį. Skirtingose zonose sklindanti šilta šviesa suteikia erdvei daugiaplaniškumo ir tėkmės jausmą.



Projektas apdovanotas konkurse „Metų interjeras“. Projekto autorius: Andrius Byčenkovas | Leono Garbačausko nuotr.


Projektas apdovanotas konkurse „Metų interjeras“. Projekto autorius: Andrius Byčenkovas | Leono Garbačausko nuotr.
Hole, įėjimo zonoje, atnaujinti buvę grindų betoniniai paviršiai. Padengti specialiu apsauginiu laku, gražiai susikabina su naujai įrengtomis medinėmis grindimis. Hole esantis baldas yra pakabintas ant sienos ir tarsi sklendi ore. Po juo įrengta vieta susidėti avalynei yra suformuota iš nugludintų akmenukų, parvežtų iš pajūrio. Šalia rado vietos ir malkos, kurios naudojamos židiniui kūrenti.
Projektuojant inžinerines sistemas reikėjo atsižvelgti į tai, kad ateityje dalis gyvenamosios erdvės pasidalins tarsi ląstelė į dvi dalis ir papildomai atsiras kambarys vaikui, visa instaliacija suprojektuota taip, kad būstas užtikrintai funkcionuotų visais augimo etapais.
Projektas apdovanotas konkurse „Metų interjeras“ Projekto autorius: Andrius Byčenkovas