
Dariaus Petrulaičio nuotr.
UŽDUOTIS – Sukurti asmeniškus namus.
LOKACIJA ir KONTEKSTAS – Namai Vilniuje, miesto pakraštyje, apsupti brandaus miško.
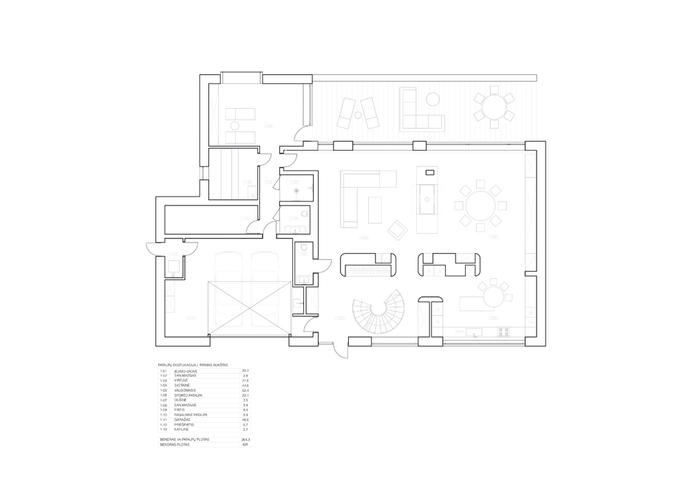
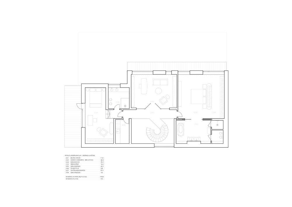
SPRENDINIAI – 550 m2 namo rekonstrukcijos metu, siekta pagerinti erdvinę kokybę ir pritaikyti šiuolaikiniams poreikiams.
MEDŽIAGOS – Naudojamos tik tikros medžiagos – metalas, medis, akmuo.
Fotografas: Darius Petrulaitis
Šalis: Lietuva
Plotas: 550 m2
Daugiau interjero nuotraukų rasite čia:
„Metų interjeras / Auksinė paletė’“ – solidžiausias profesionalių interjero kūrėjų konkursas, kuriuo siekiama kelti interjero kultūrą Lietuvoje. Iki šiol konkurse jau dalyvavo per 250 architektų ir dizainerių. Vertinti buvo pateikta daugiau nei 1 500 darbų. Įteikta daugiau nei šimtas viena „Auksinė paletė“ – interjero dizaino „Oskaras“.
Visą konkurso „Metų interjeras / Auksinė paletė“ dalyvių kurtų interjerų galeriją galite peržiūrėti čia.