
Antano Štrimaičio nuotr.
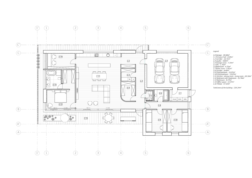
Interjero dizainą bei architektūrą Skandinavijoje bei Lietuvoje studijavusi žmonių grupė, susibūrusi į bendrą komandą – Very Good Archtecture Company, savo projektuose vadovaujasi ne tik tvarumo principais ir estetikos kriterijais, bet ir savitu filosofiniu požiūriu į kuriamus objektus bei jų vidų. Vienas naujausių projektų – 234 m₂, 4 miegamųjų kambarių privatus gyvenamasis namas Vilniaus rajone, prie tvenkinio. Šis statinys yra modernios minimalistinės architektūros pavyzdys. Tai dviejų skirtingo aukščio tūrių kompozicija su 11 m stikline vitrina į priešais esantį tvenkinį ir kiek uždaresniais fasadais nuo supančių kaimyninių sklypų bei įvažiavimo.
Projekte daug dėmesio skirta detalėms – namą juosianti medinė degto medžio terasa ir privatumo suteikiantis vertikalus medinis ažūras, mažas sodelis su japonišku klevuku priešais pagrindinio miegamojo langus ir švieslangiu virš jo terasos stogelyje, apskritas dzenbudizmo langas terasoje prie grilio zonos, įrėminantis tvenkinio vaizdus. Visi šie Rytų estetikos įkvėpti architektūriniai elementai kalba apie skirtingą žmogiškesnį mastelį architektūroje bei detalės svarbą.
Išorės apdailai naudojamos juodos natūralaus akmens, pailgos formos plytos derinamos su kelių atspalvių degto maumedžio lentomis. Skirtingos fasadinės apdailos medžiagos ir jų santykis pabrėžia viena kitos faktūrą, skirtingi paviršiai – blizgūs ir matiniai, sukuria tarpusavio harmoniją, išbaigtumą. Šio projekto medžiagų derinys labai subtilus, kupinas niuansų, skirtingas jų mastelis bei formatas išryškina architektūrinių tūrių proporcijas, sukuria ritmą.
Koncepcija. Interjero architektūra
Namo vidaus funkcijos klausimai sprendžiami paskirstant vaikų ir tėvų zonas skirtingose namo pusėse – architektūroje šis atskyrimas matomas dviejų skirtingo aukščio tūrių kompozicijoje. Pastato centre įrengtos bendrai naudojamos patalpos – erdvi, 70 m₂ atviro tipo virtuvė–valgomasis–svetainė – vieta, kurioje susitinka šio namo gyventojai kartu praleisti laisvalaikio.
Šiame projekte svarbūs vizualiai ryšiai bei pagrindinės gyventojų judėjimo ašys – įėjus pro pagrindines duris, lankytoją pasitinka įrėmintas medžių vaizdas pro vidinio kiemo langą. Analogiškas sprendimas panaudotas ir įžengus į vaikų zoną bei vaikų kambarius – visur žvilgsnis atsiremia į vaizdą pro langus. Skirtingos funkcinės zonos visiškai apeinamos.
Bendrojoje virtuvės–valgomojo ir svetainės zonoje norėjome išsaugoti erdvės vientisumą ir pabrėžti jos 3,5 m aukštį bei erdvumą, todėl šios zonos viduryje atsiranda netikėtas žemesnis tūris – ūkinių patalpų blokas su paslėptais įėjimais į patalpas. Jis išskirtas vertikalių medinių tašelių apdaila ir paslėptu apšvietimu.
Šio projekto interjere matome platesnį naudojamų medžiagų spektrą. Kaip ir išorėje, taip ir namo viduje daugiausia dėmesio skirta natūralių ir kokybiškų medžiagų deriniams, skirtingo ritmo ir mastelio juose paieškoms. Naudojamos ramios, žemiško kolorito spalvos. Juoda namo išorė interjere įgauna šviesesnius – anglies ir pilkšvus tonus. Jie derinami su rudomis ir žalsvomis, prigesintomis gamtinėmis spalvomis. O vaikų zona netikėtai pasitinka balkšvo smėlio atspalviais.
Koncepcija. Baldų architektūra
Bendroji erdvė zonuojama sluoksniais – lygiagrečiai su šiauriniu fasadu įrengta ilga vieno aukšto virtuvė su įspūdinga 6 m ilgio sala. Baldui naudojamas juodos spalvos natūralus ąžuolo lukštas, salai – juodas, įdomesnio rašto korianas – šie baldai tampa fonu erdvės centre esančiam unikalaus dizaino ąžuoliniam valgomajam stalui. Kitoje pusėje – lygiagrečiai pietinės virtinos yra svetainės zona, kurios moduliniai baldai sukuria galimybę dėlioti įvairius scenarijus – sutelkiant dėmesį į TV, tvenkinį ir gamtą ar stalo žaidimų vakarą su draugų kompanija.

Antano Štrimaičio nuotr.
Medžiagos ir šviesa
Interjere gausu sodrių medienos tonų, žaismo tarp lygių plokštumų ir ritmiško atsikartojimo. Iš kiekvieno pagrindinės erdvės kampo bendra medžiagų kompozicija atrodo dinamiška, matoma skirtinga jų tarpusavio sąveika. Mediena naudojama grindlentėms, baldams, sijoms, durims. Atsvara šiltam medžio tonui – akmens masės plokštėmis dengta siena. Ji kontrastuoja tiek savo pilkšvu tonu, tiek kietu, šaltu paviršiumi. Skirtingų medžiagų santykis išryškina viena kitos savybes ir leidžia sukurti harmoningą visumą.
Medžiagose daug natūralių atspalvių: pagrindinė medienos spalva – sodri, tamsinto ąžuolo. Būstą papildo tamsūs juodi, žali, pilkšvi tonai. Bendra gama – rami. Tėvų zonoje įrengtas miegamasis, privatus ir erdvus vonios kambarys su atskira drabužine. Vaikų zona – šviesi. Į kambarius patenkama per atskirą koridorių–galeriją, kurios sienos ateityje galėtų būti skirtos kūrybai bei vaikiškai netvarkai. Miegamųjų kambarių dizainas universalus, skirtas augančiam vaikui, neprisirišant prie konkretaus amžiaus. Kadangi bendroji kvadratūra nedidelė – suprojektuotas žemas lovos baldas, leidžiantis beveik visą grindų paviršių paversti vaikų žaidimų aikštele.

Antano Štrimaičio nuotr.
Pro didelius langus į vidų patenka daug dienos šviesos, todėl sąmoningai pasirinktos tamsesnės medžiagos: jos padeda išlaikyti jaukią dermę tarp lauko ir vidaus. Priklausomai nuo paros meto ir veiklos, kuriami skirtingi dirbtinio apšvietimo scenarijai. Pagrindinis apšvietimas svetainėje – LED šviestuvai sijose. Toks apšvietimo tipas leidžia turėti pakankamai šviesos erdvėje, tačiau neakinančios, labiau subtilios, atspindėtos nuo lubų. Kadangi vidaus erdvių aukštis ganėtinai didelis – 3,5 metro, toks sprendimas puikiai pasiteisina. Medinės sijos „suvaldo“ patalpos mastelį ir padeda sukurti jaukų, intymesnį apšvietimą.
Taškiniai šviestuvai – subtilaus, tačiau išskirtinio dizaino. Jie harmoningai įsilieja į bendrą interjerą ir jį papildo. Taip pat svarbus paslėptas apšvietimas užuolaidų nišose, lentynose, pastatomieji šviestuvai. „Šviesos–tamsos“ tema šiuose namuose ypač svarbi. Bendrosiose patalpose, kaip antai svetainėje, virtuvėje, miegamojo zonoje su vonia, vyrauja tamsūs tonai, vaikų bloke – šviesūs. Architektūroje šis santykis išreikštas pasitelkiant tūrius o, interjere atskleidžiamas per spalvinius tonus. Skirtingi šviesos šaltiniai leidžia papildyti būstą skirtingomis nuotaikomis. Daugiau įvairių, nors ir mažesnio intensyvumo šviesos šaltinių, kuria daug jaukesnę, šiltesnę namų atmosferą. Tokią, kurioje malonu būti, gyventi, leisti laiką su šeima.
Šalis: Lietuva
Plotas: 234 m2
Daugiau interjero nuotraukų rasite čia:
„Metų interjeras / Auksinė paletė’“ – solidžiausias profesionalių interjero kūrėjų konkursas, kuriuo siekiama kelti interjero kultūrą Lietuvoje. Iki šiol konkurse jau dalyvavo per 250 architektų ir dizainerių. Vertinti buvo pateikta daugiau nei 1 500 darbų. Įteikta daugiau nei šimtas viena „Auksinė paletė“ – interjero dizaino „Oskaras“.
Visą konkurso „Metų interjeras / Auksinė paletė“ dalyvių kurtų interjerų galeriją galite peržiūrėti čia.