
Lino Ulecko nuotr.
Šis loftas yra įsikūręs buvusios gamyklos administracijos pastate. Tai išskirtinė, funkcionali bei estetiška vieta kūrybai, darbui ir gyvenimui.
Kai šiame objekte pradėjau savo darbą – jau buvo išvedžiota elektros instaliacija, numatytas erdvių išdėstymas, ko užsavkovas nenorėjo keisti, tad teko prisitaikyti prie šių, rodos, nedidelių padarytų darbų, bet įtakojančių tolimesnius projekto sprendimus.
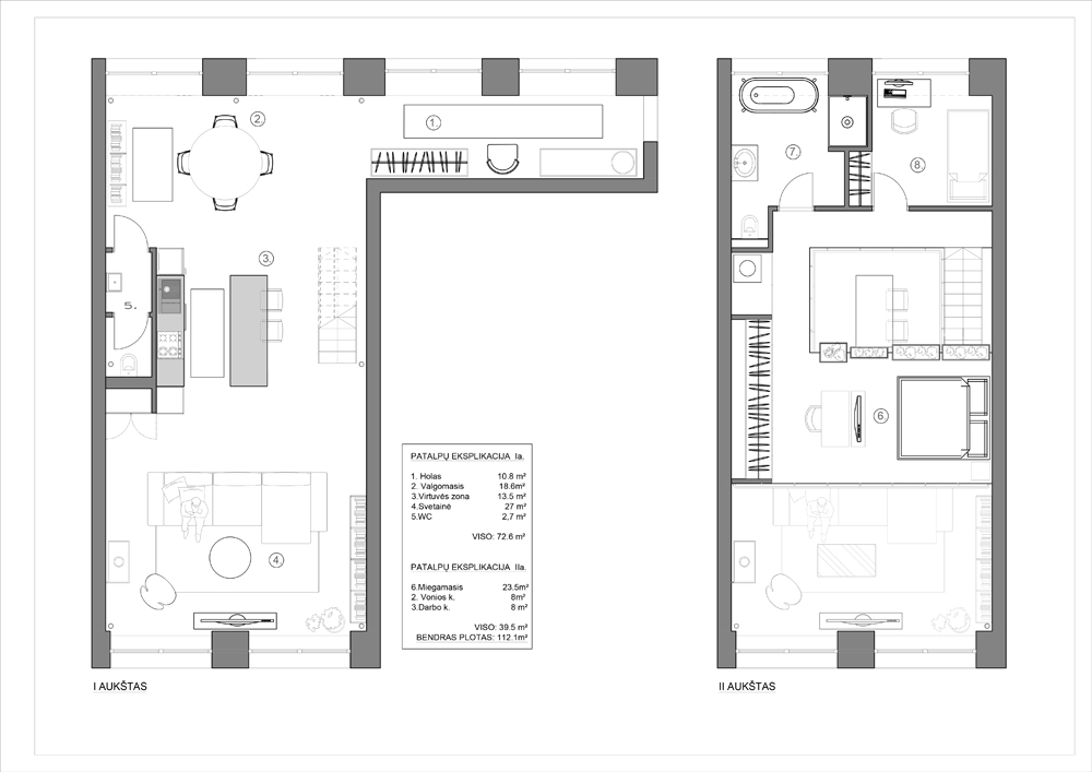
Loftas yra dviejų aukštų – 110 kv. m. Erdvė netipinė, unikali, neatskiriant pertvaromis net miegamojo zonos, tad privatumui, vieną miegamosios lovos pusę sprendžiau „apželdinti“ stabilizuotais augalais, kurie turi gyvų augalų išvaizdą, tačiau reikalauja minimalios priežiūros. Tai buvo itin aktualu užsakovui. Kitoje antresolės pusėje – įrengėme metalinius turėklus. Tokiomis priemonėmis atskyrėme miegamojo zoną, bet tuo pačiu ir išlaikėme atvirą vaizdą į bendrą erdvę, į ypatingai aukštus langus.
Svetainėje, užsakovo pageidavimu, buvo numatyta aukšta atvira knygų lentyna. Knygos lentynoje sąmoningai apsuktos nugarėle į sieną, siekiant sumažinti sudaromą skirtingų viršelių „triukšmą“.
Visi lofte esantys kietieji baldai yra individualios gamybos. Taip maksimaliai prisitaikant ir išpildant poreikius daiktų laikymui.
Bendrai interjere siekiant išlaikyti industrinio stiliaus dizainą, buvo pasirinktos grubesnės natūralios medžiagos: betonas, medis, metalas. Konceptui namų jaukumo ir šilumos suteikia svetainės zonoje įrengta krosnelė.
Šiame projekte gavau pakankamai didelę kūrybinę laisvę. Nederinau preciziškai kiekvieno parenkamo elemento suvienodinant jų spalvą ar medžiagiškumą, o tiesiog kūriau paveikslą, kuriame svarbu vaidmenį žaidė unikalumas, erdvės pojūtis ir nestandartiniai sprendimai.
Šalis: Lietuva
Plotas: 110 m2
Daugiau interjero nuotraukų rasite čia: