
Norbert Tukaj nuotr.
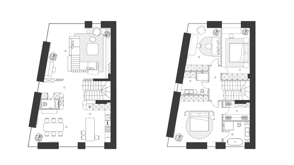
Pagrindinė užduotis buvo įrengti erdvų, beveik 300 kv. m kotedžą jaunai vilniečių šeimai. Pirmame aukšte – virtuvė su svetaine ir svečių WC patalpa. Antrame aukšte – šeimininkų miegamasis su vonios kambariu, vaikų kambarys ir vonia bei darbo kambarys. Išskirtinumo būstui suteikė aukštos lubos.
Šeimininkai nenorėjo klasikinių motyvų, pirmenybę teikė išlaikytiems tonams. Interjere vyrauja žemės spalvos, kontrastą kuria šviesios grindys ir tamsus medžio lukštas. Vietoj užuolaidų pasirinktos modernios medinės žaliuzės. Kintančio dydžio mediniai tašeliai kartojasi visuose namuose, taip sukuriant ritmiką. Šie elementai atskiria virtuvės erdvę, įėjimo zoną, laiptus ir svetainę. Namuose daug kur panaudotas šilumą ir jaukumą sukuriantis medžio lukštas. Klientų pageidavimu, ant baldų ir sienų atsikartoja lenktos formos. Šie namai ir po daug metų nepraras aktualumo. Vienintelis interjero madose vyraujantis sprendimas yra apvalūs kampai.
Didelių gabaritų plytelės naudotos ne tik grindims, bet ir sienoms, televizoriaus sienelei. Pirmame aukšte dėl praktiškumo plytelės pasirinktos įėjimo ir virtuvės zonai bei laiptams. Miegamojo lovos galvūgalyje taip pat naudota plytelė, sukurianti sąsają tarp vonios ir miegamojo erdvės. Vienas įdomesnių sprendimų – kambario viduryje pastatyta lova. Aplink ją kuriamas veiksmas, o ilsintis galima stebėti vaizdą pro langą. Lenktas lovos galvūgalis – aptakių formų tąsa.
Kartu su komanda interjero dizainerė sukūrė jaukius, žemės spalvų namus, kuriuose juntama modernumo dvasia.
Šalis: Lietuva
Plotas: 300 m2
Daugiau interjero nuotraukų rasite čia:
„Metų interjeras / Auksinė paletė’“ – solidžiausias profesionalių interjero kūrėjų konkursas, kuriuo siekiama kelti interjero kultūrą Lietuvoje. Iki šiol konkurse jau dalyvavo per 250 architektų ir dizainerių. Vertinti buvo pateikta daugiau nei 1 500 darbų. Įteikta daugiau nei šimtas viena „Auksinė paletė“ – interjero dizaino „Oskaras“.
Visą konkurso „Metų interjeras / Auksinė paletė“ dalyvių kurtų interjerų galeriją galite peržiūrėti čia.