
Antano Štrimaičio nuotr.
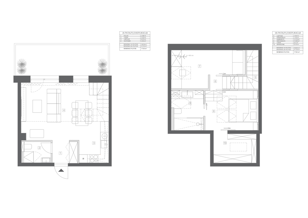
Šis objektas architektūriškai turtingas ypatingai aukšta erdve, skirtingais lubų lygiais ir šlaitinėmis lubomis antrame aukšte. Vienu pagrindinių iššūkiu tapo kaip pritaikyti 7.2 metrų aukščio atvirą erdvę per du aukštus kliento poreikiams ir interjero idėjai.
Esami interjero architektūros iššūkiai ir kliento poreikis skatino galvoti kūrybiškai, ieškoti racionaliausių erdvių planavimo kelių. Todėl antrame aukšte papildomai suprojektuota dvitėjinės metalo konstrukcijos perdanga suteikė galimybes turėti darbo-svečių kambarį. Atitinkamai pritaikyti „U“ formos laiptai, jungiantys pirmą ir antrą aukštus. Čia taipogi rasime laiptelius į miegamajo zoną, bei visas duris paslėptas sienose taupant vietą ir supaprastinant judėjimą mažose erdvėse.
Interjere balansuojama tarp užuominų į industrinį, modernų itališką bei prancūzišką stilius. Iš pažiūros skirtingose ašyse esantys stiliai jungiasi į darnią ir dinamišką visumą, kurioje gausu skirtingų tekstūrinių paviršių. Interjere rasite net keletą sluoksnių bei atspalvių su betono dekoru, plokštumas iš natūralaus medžio ir medžio lukšto, natūralias chevron parketlentes, dažyto metalo ir balto marmuro grindis bei stalviršį. Apšvietimo sprendimai interjere taip pat projektuoti sluoksniais – tai atkartoja ir viso interjero sluoksniškumo idėją, o skirtingi scenarijai išpildo visus namų gyventojų poreikius dirbtinei šviesai.
Šalis: Lietuva
Plotas: 73 m2
Daugiau interjero nuotraukų rasite čia:
„Metų interjeras / Auksinė paletė’“ – solidžiausias profesionalių interjero kūrėjų konkursas, kuriuo siekiama kelti interjero kultūrą Lietuvoje. Iki šiol konkurse jau dalyvavo per 250 architektų ir dizainerių. Vertinti buvo pateikta daugiau nei 1 500 darbų. Įteikta daugiau nei šimtas viena „Auksinė paletė“ – interjero dizaino „Oskaras“.
Visą konkurso „Metų interjeras / Auksinė paletė“ dalyvių kurtų interjerų galeriją galite peržiūrėti čia.