
Architektūros ir interjero studija „Prusta“
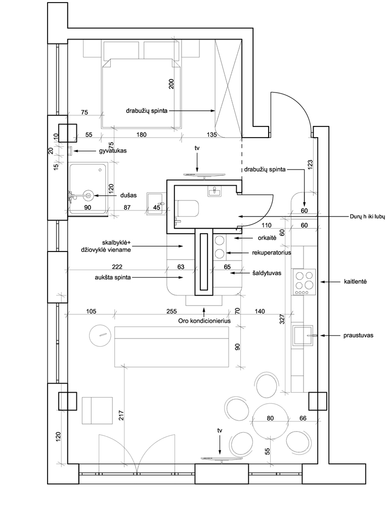
Tai vieno brandaus žmogaus namai Vilniaus centre. Jis žino, kas jis ir ko jam reikia, ir kas dar svarbiau, ko jam nereikia. Nedideliame plote sutalpinta viskas, ko reikia patogiam bei jaukiam gyvenimui, kur nėra jokių papildomų detalių, kurios tave vargintų ar reikalautų nepaliaujamo dėmesio. Svarbiausia užduotis: išlaikyti erdvumo pojūtį. Tai išpildyta pasirenkant labai netradicinį sprendimą – visos skirtingas funkcines zonos sudėliotos ratu apie buto ašį neatsikiriant jų jokiomis pertvaromis. Buto ašis – tai vienintelė uždara patalpa erdvėje – tualetas bei apie jį ratu formuojamos nematomos spintos, kuriose slepiasi pagrindinės buto techninės detalės: rekuperatorius, skalbimo mašina, šaldytuvas, orkaitė. Gyvenimas vyksta nuolat judant ratu. Šiame rate ir virtuvės baldas, neprimenantis virtuvės, bet greičiau tik elegantišką komodą, ir patogus didelis atviras dušas, ir apvalus stalas, kviečiantis svečius bei patogi, oriai švari miego pritamsinta miego erdvė.
Šalis: Lietuva
Plotas: 47m2
„Metų interjeras / Auksinė paletė’“ – solidžiausias profesionalių interjero kūrėjų konkursas, kuriuo siekiama kelti interjero kultūrą Lietuvoje. Iki šiol konkurse jau dalyvavo per 250 architektų ir dizainerių. Vertinti buvo pateikta daugiau nei 1 500 darbų. Įteikta daugiau nei šimtas viena „Auksinė paletė“ – interjero dizaino „Oskaras“.
Visą konkurso „Metų interjeras / Auksinė paletė“ dalyvių kurtų interjerų galeriją galite peržiūrėti čia.