
Norbert Tukaj nuotr.
„Kuriant šio buto interjerą iš pradžių įvertinau jo pagrindinius privalumus: puiki buto vieta Vilniaus senamiesčio širdyje, nuostabios rausvos bažnyčios vaizdas pro langus, aukštos erdvės lubos bei dideli vitrininiai langai. O tada teko išspręsti klausimą, kaip šioje sąlyginai nedidelėje nuostabioje erdvėje sutalpinti, svetainę, virtuvę, miegamąjį, vaiko kambarį, privatų vonios kambarį su drabužine bei svečių tualetą – ir kas svarbiausia, visa tai sutalpinti taip, kad namai vis dar liktų erdvūs, saulėti ir jaukūs. Teko pasitelkti visą architektūrinę išmonę, skaičiuoti centimetrus, sukti galvą kaip paslėpti inžinerinius sprendimus, kurti tik šiai erdvei tinkančius baldus. Ir galiausiai „vuale“ – štai jums puikūs, senamiesčio dvasia alsuojantys, jautrūs, natūraliomis medžiagomis išpildyti, patogūs bei šiek tiek Prancūzija kvepiantys jaunos šeimos namai“, – interjero dizainerė Ieva Prunskaitė.
Daugiau interjero nuotraukų rasite čia:
Fotografijų autorius: Norbert Tukaj
Šalis: Lietuva
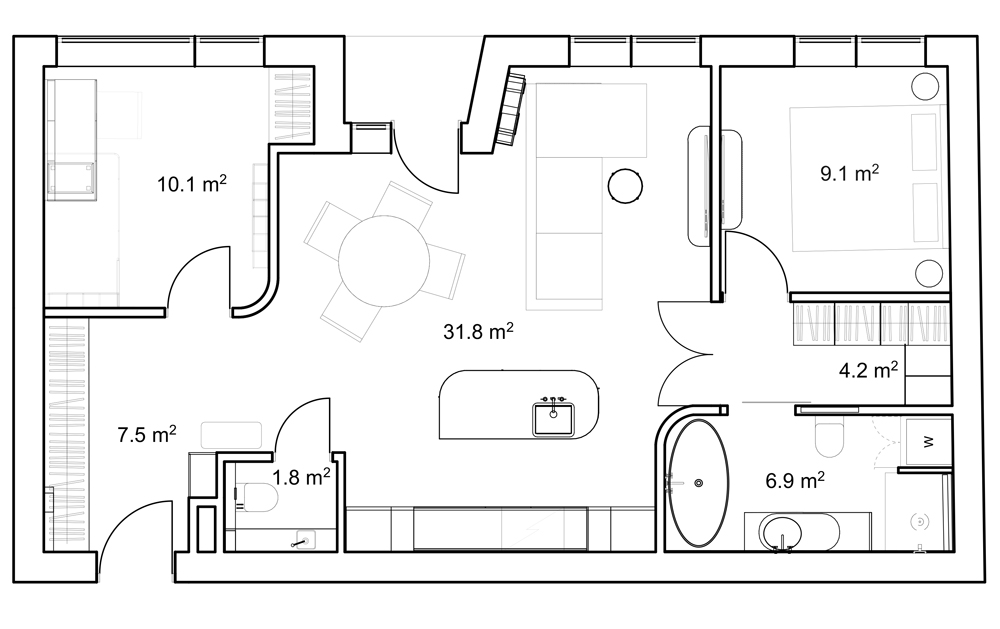
Plotas: 72 m2