
Andriaus Stepankevičiaus nuotr.
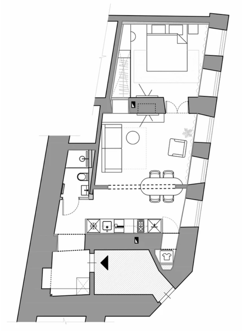
Kadangi tai labai senos statybos butas, nebuvo galima keisti jo sienų padėties. Dizainerė stengėsi laikytis senesnio suplanavimo. Pasak specialistės, siena, kur suprojektuotas pusbarinis valgomojo stalas, buvo iš dalies nugriauta, kad nedidelės kvadratūros būsto erdvės būtų kuo atviresnės ir kad būtų juntamas erdviškumas.
Pasiteiravus plačiau apie pastato istoriją, dizainerė pabrėžė, jog autentiškas buto išdėstymas, o tiksliau – sienų kreivumas. Buvo paliktos atviros, grublėtos namo sienų plytos – jas galima pamatyti tik įžengus į namus. Svetainėje, ant sienų, išlikę istorinio paveldo fragmentų. Apskritai šis interjeras kurtas lengvos, modernios klasikos principu. Po polichrominio tyrimo palikti fragmentai taip pat prisidėjo prie bendros interjero spalvinės gamos ir stilistikos.

Andriaus Stepankevičiaus nuotr.
Visame bute dominuoja kelios pagrindinės spalvos ir medžiagos: pilka, žalia, šviesus ir tamsus, sodraus atspalvio, medis, kurį papildo šilti smėlio tonai ir veliūriniai audiniai. Harmoningas šių spalvų ir medžiagų derinys perteikia būsto nuotaiką – čia vyrauja santūri, savita atmosfera. Tokia atmosfera, kokią diktuoja buto vieta.
Anot studijos ubuntu•interior įkūrėjos: „Norėta, kad kiekviena interjere atsiradusi detalė būtų visumos dalis, o ne pavienis objektas. Todėl atidžiai rinkome ir derinome interjero aksesuarus bei dekoro elementus, kad kiekvienas jų būtų tarpusavyje susijęs per formą, spalvą, faktūrą.“
Pasiteiravus apie išmaniųjų technologijų, kurios tampa įprastos įrengiant namus, diegimą, G. M. Zmejauskienė patikino, kad šiuose apartamentuose jų nėra: „Atvirkščiai, net jungiklis į vonios kambarį gyventojus nukelia į kiek senesnius laikus. Tam, kad vonios kambaryje užsidegtų šviesa, įėjus reikia truktelėti už virvelės“, – šypsodamasi pokalbį baigia dizainerė.
Interjeras dalyvauja „Metų interjeras / Auksinė paletė ’21“ konkurse.
Interjero dizainas Guodos Marijos Zmejauskienės
Studija ubuntu•interior
Nuotraukos Andriaus Stepankevičiaus
Tekstą parengė Gytautė Ivanauskaitė