
Vytenio Raubicko nuotr.
Ar Jūsų namai gali atrodyti, kaip atpalaiduojanti atostogų kryptis? Erdvė, kurioje pastelinių spalvų prieglobstyje randate ramybę? TAIP! „Manufaktūra“ privataus gyvenamojo buto interjeras puikiai atspindi klientų charakterį, aistrą kelionėms ir nepamirštamoms akimirkoms! Šiuo ypatingu pandeminiu laikotarpiu norėjome parodyti, jog interjeras ne tik turi atspindėti klientų vidinį gyvenimą, bet ir iki šiol nukeliautas keliones, nuotykius ir hobius! Naudojome iš gamtos paimtas natūralias medžiagas, kaip medis, betonas bei ratanas, kietujų baldų gamybai, kad atskleistume gamtos grožį bei rausvų atspalvių tonus, kurie suteikia peno svajoti.
Šalis: Lietuva
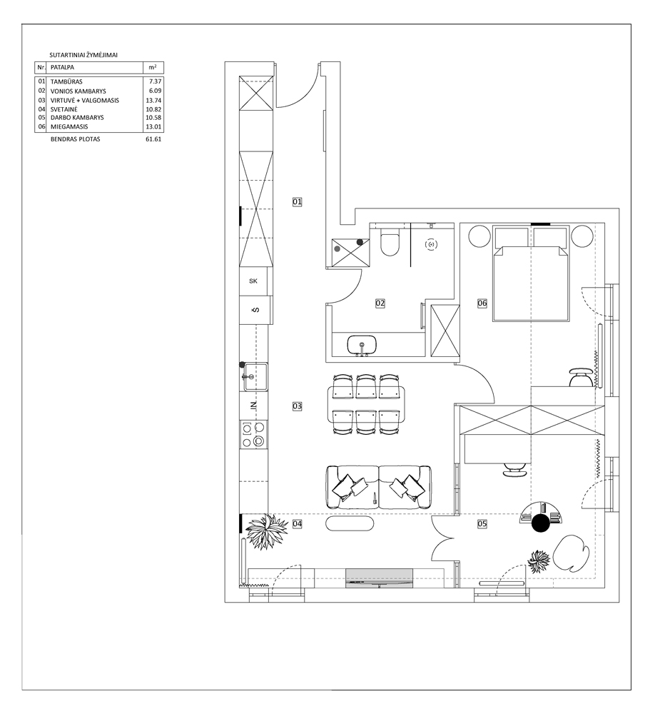
Plotas: 61m2
„Metų interjeras / Auksinė paletė’“ – solidžiausias profesionalių interjero kūrėjų konkursas, kuriuo siekiama kelti interjero kultūrą Lietuvoje. Iki šiol konkurse jau dalyvavo per 250 architektų ir dizainerių. Vertinti buvo pateikta daugiau nei 1 500 darbų. Įteikta daugiau nei šimtas viena „Auksinė paletė“ – interjero dizaino „Oskaras“.
Visą konkurso „Metų interjeras / Auksinė paletė“ dalyvių kurtų interjerų galeriją galite peržiūrėti čia.