
Beno Šileikos nuotr.
Interjere vyrauja vien ramūs harmoningi tonai, kurie persipina tarpusavyje lyg vientisa spalvų paletė. Interjeras skirtas dviem suaugusiems žmonėms, mėgstantiems estetika ir švarą erdvėje, tad interjeras kurtas kuo mažiau apraunant jį daiktais bei suteikiant erdvės spalvoms bei architektūrinėms namo ervių linijoms.
Šalis: Lietuva
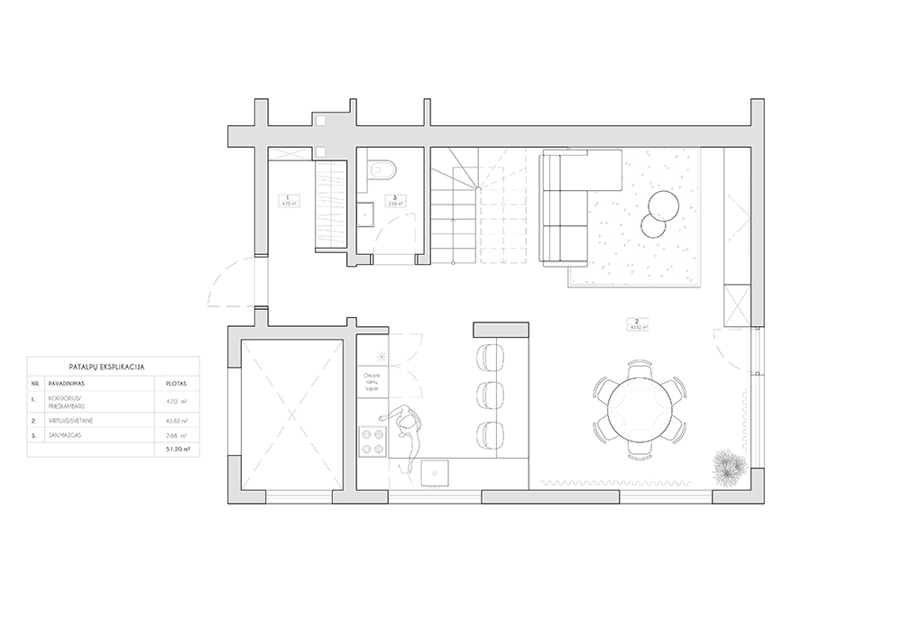
Plotas: 107m2
„Metų interjeras / Auksinė paletė’“ – solidžiausias profesionalių interjero kūrėjų konkursas, kuriuo siekiama kelti interjero kultūrą Lietuvoje. Iki šiol konkurse jau dalyvavo per 250 architektų ir dizainerių. Vertinti buvo pateikta daugiau nei 1 500 darbų. Įteikta daugiau nei šimtas viena „Auksinė paletė“ – interjero dizaino „Oskaras“.
Visą konkurso „Metų interjeras / Auksinė paletė“ dalyvių kurtų interjerų galeriją galite peržiūrėti čia.