
Norbert Tukaj nuotr.
Renovuojant Vilniaus senamiestyje esantį butą, užsakovų vienas pagrindinių prašymų buvo integruoti turimus „mid century“ stiliaus baldus. Taip pat interjero stiliui turėjo įtakos jo lokacija bei užsakovų prašymas sukurti šviesias, jaukias erdves panaudojant tik natūralias medžiagas. Galutiniame rezultate išgavome subtilų interjerą kuriame integravome natūralų akmenį, ąžuolo lukštą ir masyvą, chromo detalės. Virtuvės ir svetainės zonų atskyrimui panaudota ažūrinė medinė sienelė, kuri galutiniame rezultate tapo pagrindiniu interjero akcentu.
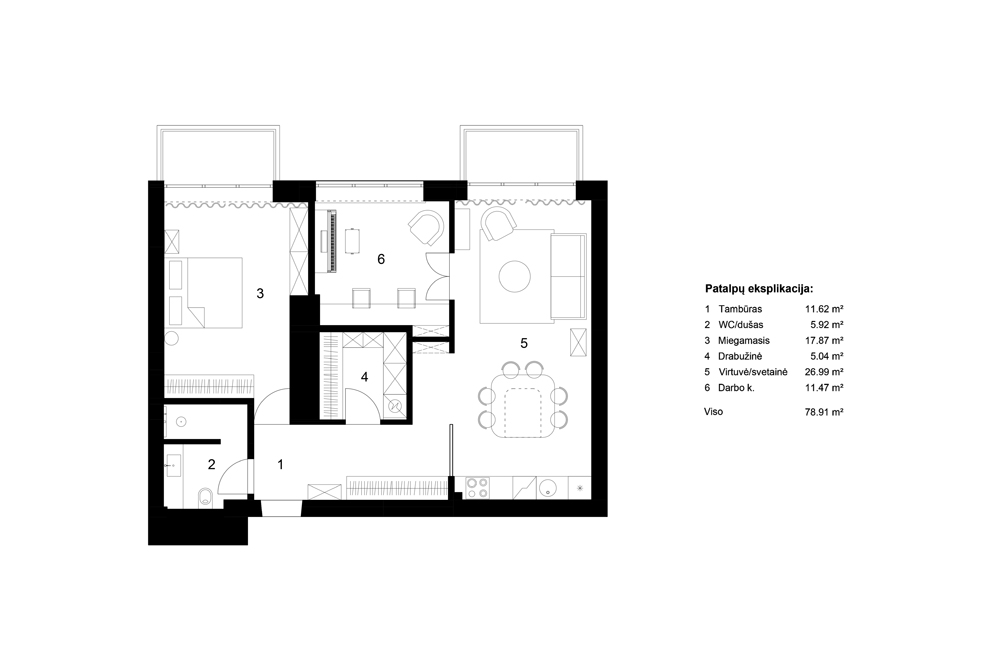
Šalis: Lietuva
Plotas: 79m2
Daugiau interjero nuotraukų rasite čia:
„Metų interjeras / Auksinė paletė’“ – solidžiausias profesionalių interjero kūrėjų konkursas, kuriuo siekiama kelti interjero kultūrą Lietuvoje. Iki šiol konkurse jau dalyvavo per 250 architektų ir dizainerių. Vertinti buvo pateikta daugiau nei 1 500 darbų. Įteikta daugiau nei šimtas viena „Auksinė paletė“ – interjero dizaino „Oskaras“.
Visą konkurso „Metų interjeras / Auksinė paletė“ dalyvių kurtų interjerų galeriją galite peržiūrėti čia.