
Norbert Tukaj nuotr.
Šis nedidelis biuras buvo projektuojamas SKUBOS būstinės pastate, įsikūrusiame industrinėje Vilniaus teritorijoje.
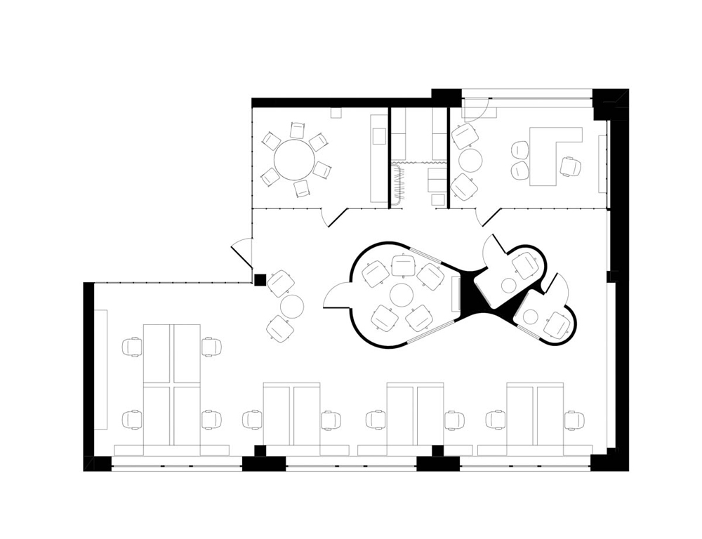
Pirminis patalpų planas lėmė kad darbo erdvės buvo numatytos perimetru – šalia langų, o biuro centre buvo numatyta susitikimų erdvė. Čia suprojektuotas aptakių formų tūris – biuro branduolys, talpinantis savyje susitikimų kambarius ir veikiantis kaip pagrindinis biuro akcentas ir erdvę formuojantis elementas. Šio tūrio formos atsveria griežtas pastato konstrukcijų, stiklo vitrinų, darbo stalų linijas, suminkština erdvę. Judėjimas aplink jį organiškas – nėra staigių posūkių, ilgų koridorių. Tūrio apdailai pasirinktas veltinis taip pat sušvelnina biuro charakterį, bei veikia kaip akustinis elementas. Susitikimų kambariai, esantys šiame tūryje – kaip iš mokslinės fantastikos filmo – nė vieno stataus kampo, tolygiai šviečiančios lubos, apvalūs langai.
Klientas pageidavo tamsesnio kolorito nei įprasta – buvo sukurtas gana tamsus bendras interjero fonas, tad buvo svarbu panaudoti ryškesnių akcentų, kad erdvė nesusilietų į vientisą masę. Tad pasirinkome „Petrol“ spalvos veltinį, natūralios šviesiai rudos odos fotelius, šviesaus medžio darbo stalų atskyrimo sienutes.
Kuriant tamsų interjerą apšvietimo sprendimai yra ypač svarbūs. Bendrai erdvei apšviesti buvo pasirinkti prožektoriniai šviestuvai, darbo vietas apšviečia kiek siauresnio kampo šviestuvai – šviesa patenka tik ant darbastalio. Darbo vietų šviestuvai, susitikimų kambario tūris skleidžia šviesą į lubas, taip išryškindami betoninių lubų konstrukciją. Darbo erdvėje šviesa prigesinta, koncentruota tik į tikslines zonas. Tuo tarpu susitikimų kambariuose tolygiai šviečia visa lubų plokštuma – visa šių kambarių erdvė puikiai apšviesta.
Šalis: Lietuva
Plotas: 170m2
„Metų interjeras / Auksinė paletė’“ – solidžiausias profesionalių interjero kūrėjų konkursas, kuriuo siekiama kelti interjero kultūrą Lietuvoje. Iki šiol konkurse jau dalyvavo per 250 architektų ir dizainerių. Vertinti buvo pateikta daugiau nei 1 500 darbų. Įteikta daugiau nei šimtas viena „Auksinė paletė“ – interjero dizaino „Oskaras“.
Visą konkurso „Metų interjeras / Auksinė paletė“ dalyvių kurtų interjerų galeriją galite peržiūrėti čia.