Publikuota: 2022 m. 22 vasario d. 09:41
Privatus interjeras („Metų interjeras / Auksinė paletė’20“)
name

Vaidoto Darulio nuotr.

„Dizona“ kviečia susipažinti su konkurso „Metų interjeras“ projekto dalyviais. Šį kartą jūsų dėmesiui Vaidos Atkočaitytės-Dališanskienės kurtas projektas – interjeras 20a. name („Metų interjeras / Auksinė paletė‘20“).

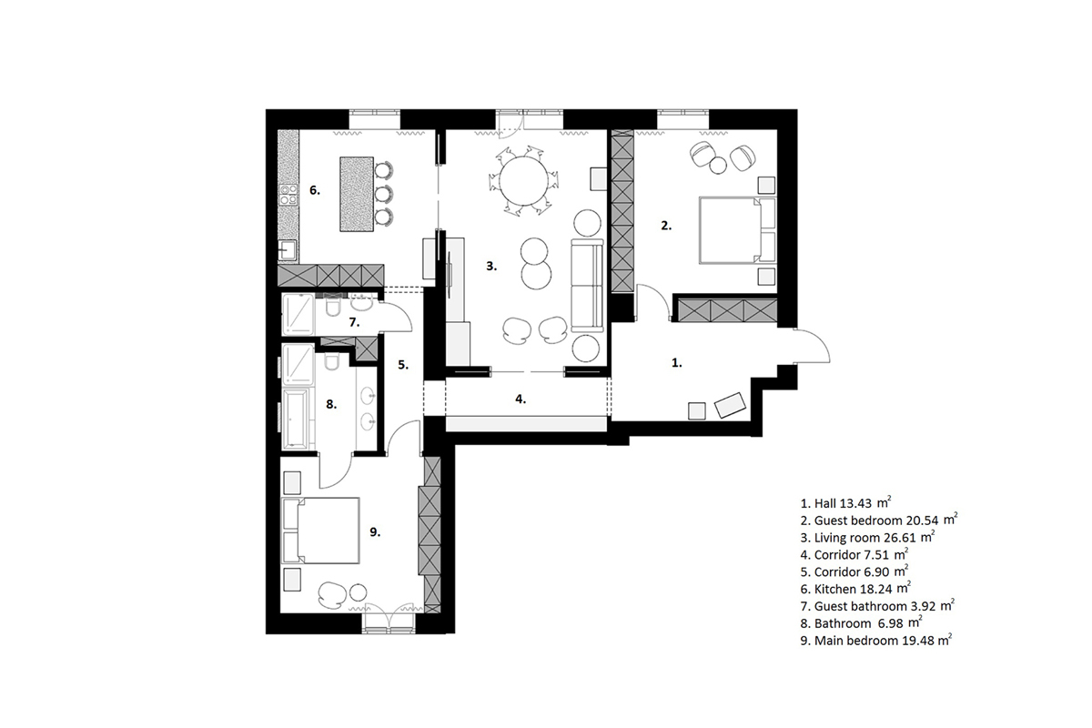
Interjeras kurtas išskirtiniame 20 a. viduryje statytame name Vilniaus centre. Šiame name gyveno ir dirbo žymūs sovietinio laikotarpio Lietuvos mokslininkai ir menininkai. 124 kv. m. aukštomis lubomis bute vis dar jaučiama ypatinga aura. Todėl norėjosi maksimaliai išsaugoti sovietmečiu statyto buto profiliuotus dekoratyvius betoninius lubų apvadus ir kitus interjero elementus. Interjero stilistika eklektika. Buvo noras sustiprinti ir papildyti esamus klasikos elementus interjero sienose kontrastuojant su moderniais šiuolaikinių tūrių elementais ir moderniais baldais. Kontrastai naudojami ir medžiagų pasirinkime. Dažniausiai klasikiniuose interjeruose naudojamos tokios medžiagos kaip marmuras ar granitas čia derinama su betono apdaila arba terrazza mozaikinio betono tekstūros plytelių apdaila.

Pagrindinis ir itin kontrastuojantis modernus buto akcentas betono tūris, kurio viduje du vonios kambariai. Perplanuojant patalpų planą įkomponuoti du vonios kambariai išsiplečiant į miegamojo kambarį tačiau įkomponuoto betoninio tūrio pagalba buvo išsaugoti miegamojo kambario esami lubų dekorai. Interjere naudojami skirtingo dizaino šviestuvai, vieni klasikiniai, kiti minimalistinio dizaino modernūs. Kai kurių šviestuvų kompozicijos kurtos ir gamintos individualiai šiam interjerui.

Visą konkurso Metų interjeras / Auksinė paletė dalyvių kurtų interjerų galeriją galite peržiūrėti čia.

Informuojame, kad šioje svetainėje naudojami slapukai („cookies“), kurie padeda užtikrinti jums teikiamų paslaugų kokybę. Paspausdami SUTINKU arba tęsdami naršymą, jūs sutinkate su portalo slapukų politika. Atjungti slapukus galite savo naršyklės nustatymuose.