Publikuota: 2022 m. 1 vasario d. 09:00
„Namas dvynys“ („Metų interjeras / Auksinė paletė‘20“)

Norbert Tukaj nuotr.

„Dizona“ kviečia susipažinti su konkurso „Metų interjeras“ projekto dalyviais. Šį kartą jūsų dėmesiui Tomo Lapės kurtas privatus interjeras „Namas dvynys“ („Metų interjeras / Auksinė paletė‘20“).

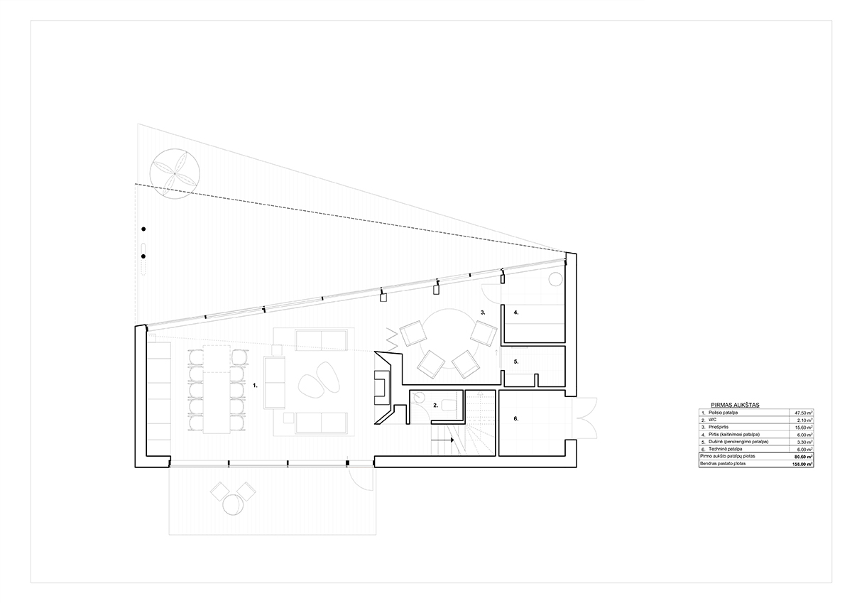
Namas dvynys kuria harmoningą ir pagarbų santykį su gamta. Tarsi dvi iš vieno kamieno išaugančios medžio šakos talpina dvi funkcijas – bendro poilsio ir privataus poilsio zonas. Interpretuojant vieną iš gamtos principų, pastato išorei pasirinktos atsparios ir tvirtos medžiagos, kai tuo tarpu interjere naudojamas balintas ąžuolas, kuria jaukumo ir minkštumo įspūdį. Stiklinės vitrinos atsiveria kraštovaizdžiui, riba tarp vidaus ir išorės išnyksta.

 

 

Informuojame, kad šioje svetainėje naudojami slapukai („cookies“), kurie padeda užtikrinti jums teikiamų paslaugų kokybę. Paspausdami SUTINKU arba tęsdami naršymą, jūs sutinkate su portalo slapukų politika. Atjungti slapukus galite savo naršyklės nustatymuose.