
Leono Garbačiausko nuotr.
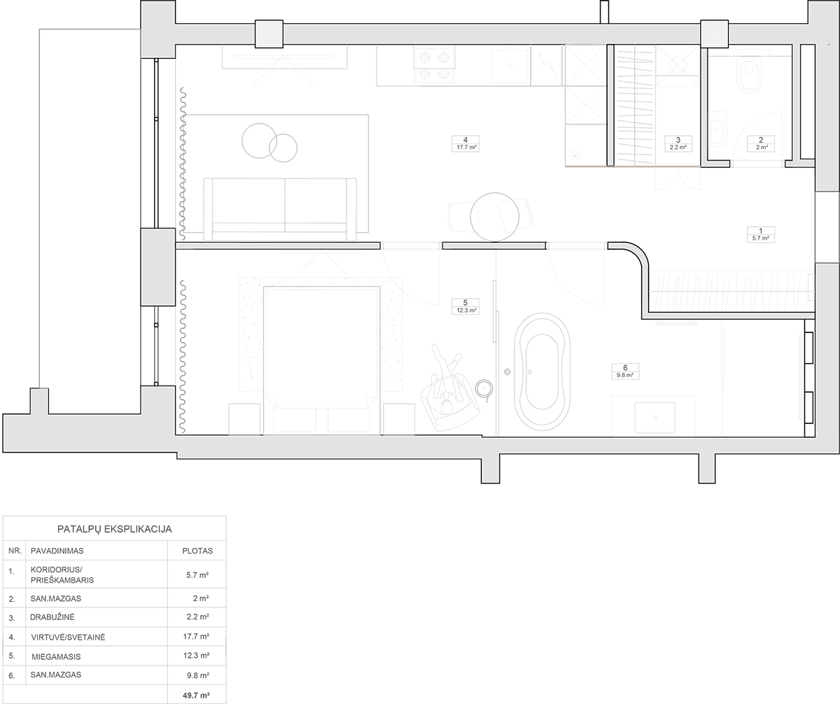
„Art deco“ Interjeras buvo kurtas drąsiam ir šiuolaikiškam vyrui, kurio vienintelis pageidavimas – sukurti tokius namus, kuriuose būtų daug juodos spalvos ir aukso detalių. Interjere pagrindinis dėmesys skiriamas dekoratyvumui. Nors butas sudėtingos pailgo stačiakampio formos, interjere sugebėta išnaudoti visas sienas nematomoms spintoms bei kitam daiktų laikymui, taip, kad jos nekristų į pirmą planą ir visą fokusas išliktų dekore.
Visą konkurso „Metų interjeras / Auksinė paletė“ dalyvių kurtų interjerų galeriją galite peržiūrėti čia.