Publikuota: 2020 m. 8 spalio d. 11:28
Kotedžai, virtę jaunos šeimos namais („Metų interjeras / Auksinė paletė’19“)

Leono Garbačiausko nuotr.

„Dizona“ kviečia prisiminti geriausius konkurso „Metų interjeras“ projektus. Šį kartą projektas laimėjęs„Metų interjeras / Auksinė paletė‘19“ kategorijoje „Tautos interjeras“. Projekto autorė dizainerė Violeta Šeputienė

Kotedžai, virtę jaunos šeimos namais

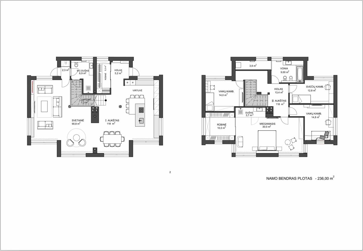
Svarbiausia užduotis, atliekant šį darbą, buvo du sublokuotus kotedžus paversti komfortiškais jaunos šeimos namais. Teko padirbėti prie plano, apjungiant dviejų namų erdves į vientisą, pritaikant jį keturių asmenų šeimos poreikiams. Spalvinį interjero sprendimą savaime padiktavo pats apdailos medžiagų parinkimas. Interjere vyrauja betonas, stiklas, medis.

Informuojame, kad šioje svetainėje naudojami slapukai („cookies“), kurie padeda užtikrinti jums teikiamų paslaugų kokybę. Paspausdami SUTINKU arba tęsdami naršymą, jūs sutinkate su portalo slapukų politika. Atjungti slapukus galite savo naršyklės nustatymuose.